Barnet house extension architect, from planning to approval.

I am an ARB-registered architect specialising in house extensions in Barnet. I help you confirm what’s feasible, prepare clear drawings, and manage your planning and Building Control submissions — so you can move forward with clarity.

Domestic-House-Extension-Types

Most clients come to me when…

  • You want more space but don’t want to move

  • You’re unsure whether you need planning or can use permitted development

  • You want drawings a builder can price properly

  • You want Building Control sorted without guesswork

A clear approvals package for house extensions

Most extensions succeed or fail on the early decisions. This package keeps the scope clear and gets you to approvals efficiently.

Feasibility & Planning Route
A focused review of constraints, planning risk, and options — so you don’t waste months on the wrong approach.

Planning Submission
Measured survey (where needed), design drawings, and planning submission with straightforward support through the decision.

Building Regs Package
A Building Control package that helps your builder price accurately and build compliantly.

CDM Principal Designer support included where the role applies.

Experience you can rely on

  • Working in architecture since 2014 (residential and technical projects)

  • Planning submissions across 10 UK council areas

  • ARB registered • professional indemnity in place

  • Trusted builder network (introductions available if helpful)

drawing-hand-architecture-plan

How it works

You’ll always know what happens next, what’s included, and what it costs.

Step 1

Feasibility call with quick review

We start with a short call, then I confirm the likely planning route and what information I need to proceed.

Step 2

Drawings and submission

I prepare the drawings, we iterate efficiently, and I submit to Barnet (or confirm if permitted development is more suitable).

Step 3

Building regs package

I prepare the Building Control drawings and coordinate key inputs (including structural engineering), so you can move to construction with clear information.

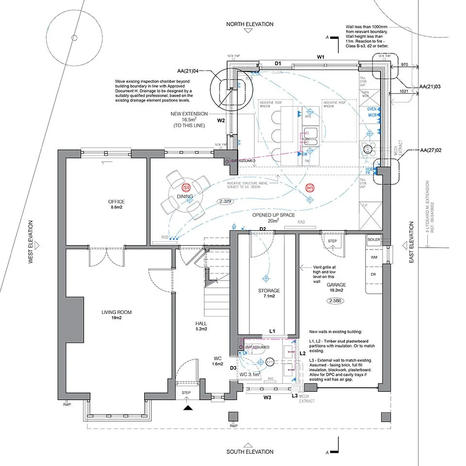
Past Project - Wrap around and Rear Extension

Scope: Planning drawings and submission, plus Building Control drawings for a two-storey extension.


Outcome: Planning permission and Building Control approval secured, completed in 2021.


Constraint: The design needed to avoid an awkward “terracing” effect and sit comfortably with the existing house proportions, this has been resolved through careful roofline and elevation alignment.

Here is what our customers say

— Adrian Sorica

September, 2024

"It was great to work with Aleks, he helped us to secure planning and building control permission really fast - I would highly recommend him to anyone looking to extend their house!"

Rear Extension - Planning & Building Control submission, Somerset

— William Marshall

May, 2023

“Aleks made the whole process of designing our house conversion incredibly smooth. He designed exactly what we wanted and handled all permissions for us.”

Conversion - Planning submission, Guildford

— John Stirling

August, 2020

“We couldn't be happier with the outcome! Every part of the process was clearly explained, and Aleks was always available to answer any questions we had.”

Side & Wraparound Extension - Planning & Building Control submission, Glasgow

Start with a free 15-minute call

Tell me your postcode and what you’re planning.

I’ll give you a clear next step — whether that’s planning, permitted development, or a feasibility study.

Prefer message? Contact me on:

Info@steadfox.net

07342 643589